Mira
via Bassa Gambarare, Mira
€310.000
- Riferimento: M564
- Dimensione: circa 120 mq
- Camere: 3
- Bagni: 2
- 1 Garage
- Garage : 18.50 mq circa
- Disponibilità: Gennaio 2026
- Totale stanze: 5 locali
- Pavimenti: A scelta del cliente
MIRA – GAMBARARE
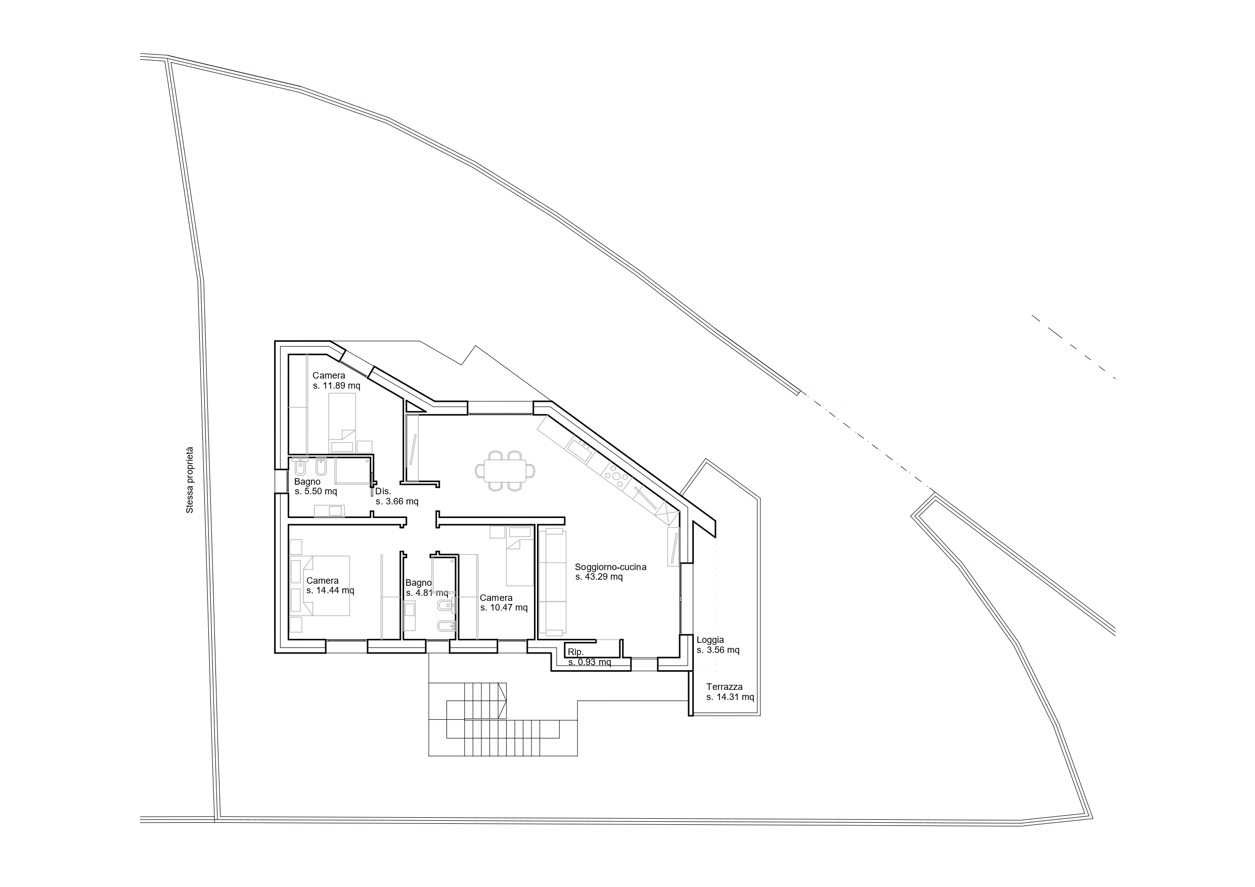
Prenotasi su piccola palazzina di prossima costruzione, la palazzina è di soli 4 appartamenti, prestigioso appartamento attico composto da:
ampio soggiorno con angolo cottura, tre camere, due bagni entrambi finestrati, ripostiglio, ampia terrazza abitabile oltre al garage ed al posto auto.
Unico appartamento al secondo ed ultimo piano.
C’è la possibilità di scegliere le finiture interne (pavimenti).
La classe energetica sarà “A4”
PER INFORMAZIONI E DISEGNI PIU’ DETTAGLIATI AGENZIA CASA GIALLA DI MIRA.
3357809532 SANDRO.
Caratteristiche
Immobile in costruzione
via Bassa Gambarare, Mira
Mira
In evidenza
Per ulteriori informazioni o richiedere una visita
Contattaci allo 041.5600726 o compila il form
[contact-form-7 id=
